Toggle menu
„WE DO NOT TOLERATE JUST THE BEST”
A honlapon látható ingatlanok nagy része kizárólag itt található meg.
My Favourites
About Us
Services
Properties
Properties in Madárhegy area
Newly built homes
További ingatlan ajánlatok
Useful infos
Related legal issues
Contact
My Favourites
« back to properties
Property #ID:
5035
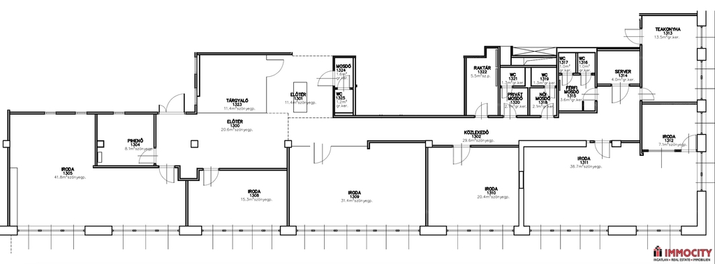
Office space in office building to let
Bp., III. kerület, Újlak
Montevideo utca
2349.42 000 Ft/mo
5963 €
Min. rentable
477 m
2
Max. rentable
477 m
2
Floor
1
Elevator
available
Has furniture
no
Has garden access
no
Has AC
yes
Cellar
available
Parkolóhely típusa
teremgarázs hely
Parkolóhely használatának feltétele
bérelhető
Garage price
130 €/month/car
Please call for details!
Contact information
Contact the agent
Csorba Dóra
+36 70 329 7700
Send your questions via e-mail
Name
E-mail
Phone
Message
Az
Adatvédelmi Tájékoztatót
elolvastam és elfogadom.
ÜZENET ELKÜLDÉSE
‹
›
×
×