Toggle menu
„WE DO NOT TOLERATE JUST THE BEST”
A honlapon látható ingatlanok nagy része kizárólag itt található meg.
My Favourites
About Us
Services
Properties
Properties in Madárhegy area
Newly built homes
További ingatlan ajánlatok
Useful infos
Related legal issues
Contact
My Favourites
« back to properties
Property #ID:
6549
Brick built apartment for sale
Bp., II. kerület, Rézmál
285.0175 MFt
723 000 €
Project name:
Tulipán Residence
(Kattintson ide a projekt további lakásaihoz!)
Due to:
2027. 1. negyedév
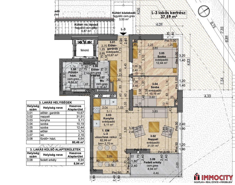
Size
82 m
2
Balcony
9 m
2
Garden
40 m
2
Rooms
2 room + 1 small room
Floor
1
Épület szintjeinak száma
4
Floors
1
Heating
hőszivattyú
Utility level
full bath, central/district heating
Elevator
available
Has garden access
yes
Ceiling
3 m-nél alacsonyabb
Energy classification
A+
Bath and toilet
külön és egyben is
Cellar
available
Condition
newly built
Attic
no loft conversion
Parkolóhely típusa
teremgarázs hely
Parkolóhely használatának feltétele
megvásárolható
Garage price
18 M Ft
Please call for details!
Contact information
Contact the agent
Csorba Dóra
+36 70 329 7700
Send your questions via e-mail
Name
E-mail
Phone
Message
Az
Adatvédelmi Tájékoztatót
elolvastam és elfogadom.
ÜZENET ELKÜLDÉSE
‹
›
×
×