Azonosító: 6857

Eladó tégla építésű lakás

Bp., XII. kerület, Orbánhegy

570 MFt
1447 ezer €
Tervezett átadás:
2027. 3. negyedév
Alapterület
150 m2
Erkély
46 m2
Szobák
5 szoba
Emelet
2
Épület szintjeinak száma
4
Belső szintek
2
Fűtés
hőszivattyú
Komfort
duplakomfortos
Lift
van
Belmagasság
3 m-nél alacsonyabb
Energiabesorolás
A+
Fürdő és wc
külön és egyben is
Pince
van
Kilátás
panorámás
Állapot
új építésű
Tetőtér
penthouse
Parkolóhely típusa
teremgarázs hely
Parkolóhely használatának feltétele
kötelező megvenni
Garázs ára
17 M Ft

Orbánhegy ősfás környezetében különleges 4 lakásos társaház épül hamarosan.

Néhány a kiemelt műszaki megoldások közül: lakásonként egyedi hűtő-fűtő rendszer, hővisszanyerős szellőztető rendszer, háromrétegű, egyedi fa nyílászárók, alumínimum redőnyök, fűtött gépkocsi lejáró, épített kert.

A gépészet, világítás és a kényelmi szolgáltatások az okos otthon rendszerrel távolról is vezérelhetők.
A Britannica International, az Osztrák iskola és a Hegyvidék bevásárlóközpont is néhány perces távolságra találhatók.

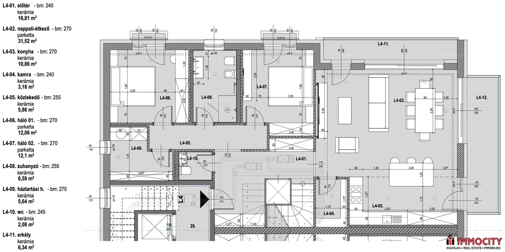
A belső kétszintes 5 szobás lakás 150 m2 alapterületű és összesen 46 m2 terasszal rendelkezik.
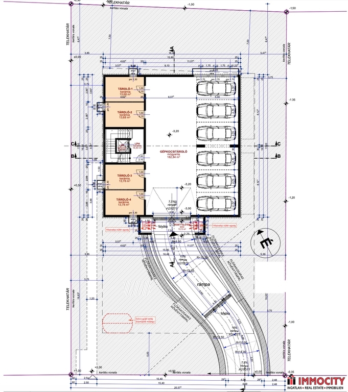
A lakáshoz két teremgarázs hely 17 M Ft és egy 14 m2-es tárlóhelyiség 18 M Ft vételáron megvásárolandó.

A házban még egy hasonló méretű és árazású lakás megvásárolható.

A belső fotók látványképek egy megvalósítható kialakításról.

Jelen hirdetés szerződéskötési ajánlatnak nem minősül. Pontos részletekért keresse értékesítési irodánkat!

Csorba Dóra
+36 70 329 7700

E-mailben is elküldheti kérdéseit, észrevételeit a következő űrlap kitöltésével